O projektu
Výběr prostor
Ceník
Standardy
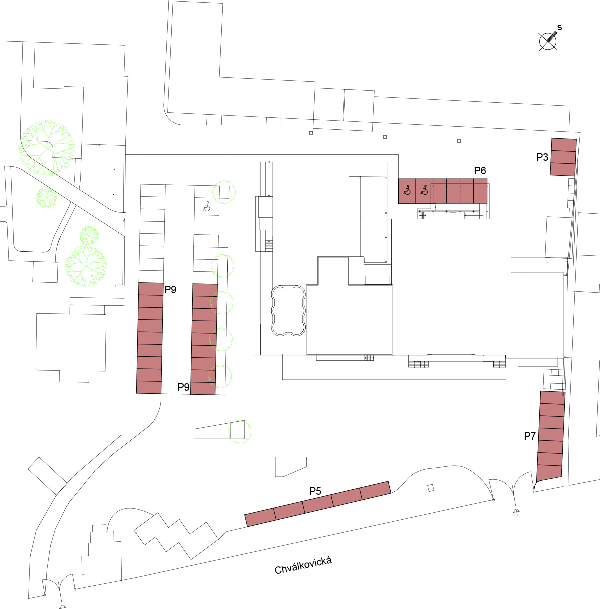
Parkování
Galerie
Kontakty
Parkování